









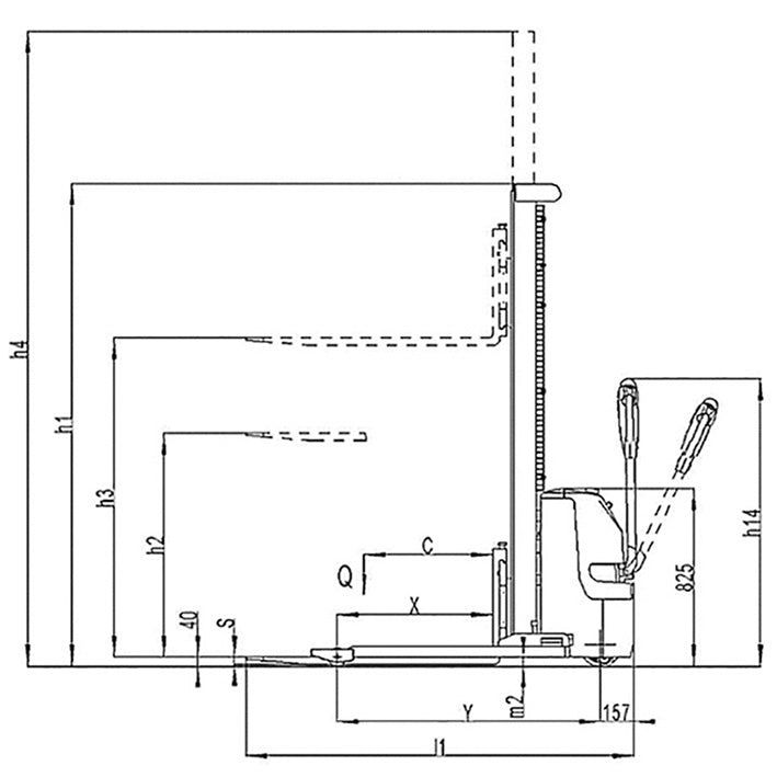
Gerbeur électrique longerons encadrants 1000 kg
Les gerbeurs éléctriques PSE10MSL1600 et PSE10MSL2000 sont accompagnants, économiques et adaptés à une variété d’applications à faible charge en entrepôt. Leur conception est robuste et éprouvée. Ils disposent d'une capacité nominale de charge de 1 tonne et d'une hauteur de levage de 1600 et 2000 mm. Leur chargeur intégré facilite...